Herzlich Willkommen
Attraktives Einfamilienhaus mit Einliegerwohnung – naturnah wohnen in Grafschaft-Leimersdorf!
399.000 €
zzgl. 3,57 % Käuferprovision inkl. MwSt*
360° VIRTUELLE BESICHTIGUNG
Lernen Sie die Immobilie vorab online kennen. Sie können die Zimmer einzeln ansteuern, rein- oder rauszoomen und sich beliebig lange mit Einrichtungsmöglichkeiten beschäftigen.
IMPRESSIONEN
KURZBESCHREIBUNG
Das angebotene Einfamilienhaus mit Einliegerwohnung befindet sich in ruhiger Wohnlage von Grafschaft-Leimersdorf. Das Gebäude wurde im Jahr 1997 errichtet, ist leerstehend und somit sofort bezugsfrei. Die Immobilie liegt am Ende einer Anliegerstraße und bietet dadurch ein besonders ruhiges und verkehrsarmes Wohnumfeld. Vom Haus aus genießt man einen unverbaubaren Blick auf angrenzende Felder, der die naturnahe und entspannte Lage zusätzlich unterstreicht.
Die Immobilie erstreckt sich über ein Erdgeschoss, ein Obergeschoss sowie ein Dachgeschoss. Das Dachgeschoss verfügt über ein Zimmer mit einer abgetrennten Fläche, die sich ideal als Garderobe oder zusätzlicher Stauraum nutzen lässt. Im Untergeschoss befindet sich ein separater Raum für die Heizungsanlage. Die Versorgung der Heizungsanlage erfolgt über einen auf dem Grundstück befindlichen Flüssiggastank.
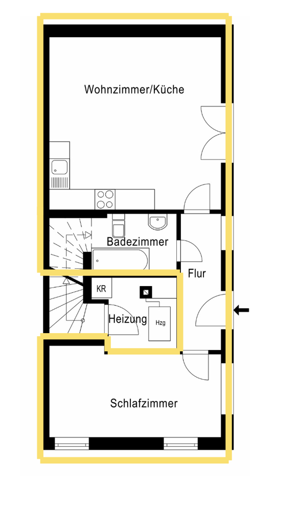
Im Erdgeschoss befinden sich der Wohn- und Essbereich sowie die separate Küche. Das Wohnzimmer überzeugt durch eine angenehme Größe und bietet ausreichend Platz für Wohnen und Essen. Zudem ist dieser Bereich mit einem Kamin ausgestattet. Von hier aus besteht der Zugang zum Außenbereich mit Garten. Ergänzt wird diese Etage durch einen Abstellraum sowie ein separates Gäste-WC mit Fenster.
Das Obergeschoss umfasst ein Schlafzimmer, ein Büro-/ Kinderzimmer sowie ein Tageslichtbad. Über den Flur besteht der Zugang zum ausgebauten Studio im Dachgeschoss.
Im Untergeschoss steht ein Kellerraum zur Verfügung.
Zur Immobilie gehören zwei Außenstellplätze. Der großzügige Garten wird durch zwei praktische Gartenhäuser ergänzt und ist zusätzlich über einen seitlichen Zugang von außen erreichbar.
Das Reihenendhaus zeichnet sich durch eine zweckmäßige Raumaufteilung, helle Räume sowie gute Nutzungsmöglichkeiten aus. Es eignet sich insbesondere für Paare oder Familien, die eine bezugsfreie Immobilie in ruhiger und gepflegter Wohnlage suchen.
“Viel, viel mehr als nur 4 Wände…”
LAGE
Grafschaft-Leimersdorf ist ein charmant gelegener Ortsteil der Gemeinde Grafschaft im Landkreis Ahrweiler in Rheinland-Pfalz. Eingebettet in die sanft hügelige Landschaft der Voreifel verbindet der Ort auf ideale Weise naturnahes Wohnen mit einer guten Anbindung an die umliegenden Städte. Leimersdorf liegt rund zehn Kilometer südwestlich von Bonn und etwa sieben Kilometer nordwestlich von Bad Neuenahr-Ahrweiler und zählt damit zu den gefragten Wohnlagen für Pendler und Ruhesuchende gleichermaßen.
Die Umgebung ist geprägt von weitläufigen Feldern, Wiesen und landwirtschaftlich genutzten Flächen. Insbesondere der Obst- und Weinbau spielt hier seit vielen Jahren eine bedeutende Rolle und verleiht der Region ihren ländlichen, gewachsenen Charakter. Die fruchtbaren Lößböden sowie das milde Klima schaffen hervorragende Voraussetzungen für die Landwirtschaft und prägen das harmonische Landschaftsbild. Die leicht hügelige Topografie eröffnet schöne Ausblicke in die Natur und trägt maßgeblich zur hohen Wohn- und Lebensqualität bei.
Die Verkehrsanbindung ist sehr gut. Über die nahegelegene Bundesstraße B266 sowie die Autobahn A61 sind sowohl Bonn als auch Bad Neuenahr-Ahrweiler schnell erreichbar. Dadurch eignet sich Leimersdorf besonders für Berufspendler, die die Ruhe des ländlichen Wohnens schätzen und gleichzeitig kurze Wege in die Ballungsräume bevorzugen.
Auch infrastrukturell ist die Lage gut aufgestellt. In den benachbarten Ortsteilen sowie im nahegelegenen Ringen befinden sich Einkaufsmöglichkeiten für den täglichen Bedarf, Kindergärten, Schulen, Ärzte und gastronomische Angebote. Ergänzt wird das Angebot durch zahlreiche Wander- und Radwege, die zu Freizeitaktivitäten in der umliegenden Natur einladen.
Grafschaft-Leimersdorf bietet somit eine attraktive Kombination aus ländlichem Charme, guter Erreichbarkeit und hoher Lebensqualität.
ENERGIEDATEN
Verbrauchsausweis | 83,40 kWh/(m²*a) | Flüssiggas | Bj. 2019 | C
- ruhige + naturnahe Wohngegend
- Massivbau
- hochwertige Einbauküche
- zwei Wohneinheiten
- 2 Außenstellplätze
- Garten mit Gartenhäusern
- Kamin
- sofort bezugsfrei
- und vieles mehr...
GRUNDRISSE




IHR ANSPRECHPARTNER
Manuel Efferz
Geschäftsführer
JETZT ANFRAGEN
Sie haben Fragen, möchten ein ausführliches Exposé erhalten oder einen Beratungstermin vereinbaren? Gerne sind wir Ihnen behilflich.
*Die Käuferprovision ist verdient und fällig mit notarieller Beurkundung. Wir haben einen Maklervertrag mit dem Verkäufer zur Zahlung der Provision in gleicher Höhe abgeschlossen.
Wir sind bestrebt, alle Objektinformationen richtig zu übermitteln. Diese beruhen ganz oder teilweise auf Angaben der Verkäuferseite. Das Exposé dient als Vorinformation und die Prüfung sämtlicher Angaben obliegt dem Kaufinteressenten. Wir übernehmen keine Gewähr.