Herzlich Willkommen
Top Gelegenheit: Freistehende Dachgeschosswohnung mit Sanierungsbedarf!
139.000 €
zzgl. 3,57 % Käuferprovision inkl. MwSt*
IMPRESSIONEN
KURZBESCHREIBUNG
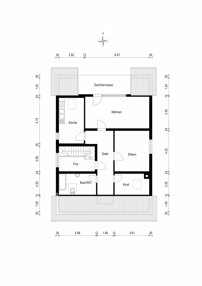
Diese gemütliche Drei-Zimmer-Wohnung mit einer Wohnfläche von ca. 79 m² bietet ein ideales Zuhause für Naturliebhaber. Eingebettet in das idyllische Tal von Unkelbach und umgeben von herrlicher Natur, überzeugt die Wohnung durch den gut durchdachten Grundriss.
Im Dachgeschoss eines familiären Hauses mit nur vier Parteien gelegen, erwartet Sie eine helle und freundliche Atmosphäre. Das großzügige Wohnzimmer mit direktem Zugang zum Balkon lädt zum Entspannen ein und bietet einen schönen Ausblick ins Grüne. Neben dem Wohnzimmer stehen Ihnen ein gemütliches Schlafzimmer sowie ein praktisches Arbeitszimmer zur Verfügung, das sich vielseitig nutzen lässt.
Die Küche bietet ausreichend Platz für Ihre kulinarischen Ideen. Außerdem verfügt die Wohnung über ein geräumiges Badezimmer mit Tageslicht. Dieses ist mit einer Badewanne, einem Waschbecken und einer Toilette ausgestattet. Der Waschmaschinenanschluss unmittelbar im Badezimmer sorgt für zusätzlichen Komfort.
Ein kleiner Abstellraum unter der Dachschräge in der Wohnung bietet praktischen Stauraum für die Dinge des täglichen Bedarfs.
Das Angebot wird durch einen separaten Kellerraum und eine gemeinschaftliche Waschküche abgerundet. Ein Autoabstellplatz direkt vor der Haustür sorgt für zusätzlichen Komfort.
Die Wohnung war über viele Jahre vermietet und ist nun leerstehend. Sie befindet sich in einem renovierungsbedürftigen Zustand und bietet somit viel Potenzial für eine moderne Neugestaltung nach eigenen Wünschen.
“Viel, viel mehr als nur 4 Wände…”
LAGE
Unkelbach ist ein Ortsteil der Stadt Remagen im Landkreis Ahrweiler, Rheinland-Pfalz. Es liegt idyllisch im Tal des gleichnamigen Unkelbachs, eingebettet zwischen den Hängen der südlichen Ausläufer des Siebengebirges und der angrenzenden Eifel. Die Region befindet sich unweit des Rheins, etwa 5 Kilometer südlich des Stadtkerns von Remagen.
Die Landschaft rund um Unkelbach ist von bewaldeten Hügeln und landwirtschaftlich genutzten Flächen geprägt. Das Tal des Unkelbachs bietet einen naturnahen Lebensraum, der sich ideal für Wanderungen und Freizeitaktivitäten eignet. Der Ort selbst liegt auf einer mittleren Höhe, die umliegenden Höhenzüge bieten schöne Ausblicke über das Rheintal und die Eifelregion. Unkelbach ist ein ruhiger und ländlich geprägter Ortsteil mit dörflichem Charakter. Die umliegenden Orte wie Oberwinter, Kripp oder Bad Breisig bieten ergänzende Infrastruktur und Dienstleistungen. Die Nähe zum Rhein und die attraktive Landschaft machen Unkelbach besonders für Naturfreunde und Ruhesuchende interessant.
Unkelbach ist klein, verfügt aber über grundlegende Infrastruktur wie eine Kirche, einen Kindergarten und einige lokale Betriebe. Für weitere Dienstleistungen, Einkaufsmöglichkeiten oder ärztliche Versorgung nutzen die Bewohner die Angebote in Remagen oder den benachbarten Gemeinden.
Die dörfliche Struktur und traditionelle Veranstaltungen spiegeln die Kultur und Gemeinschaft des Ortes wider. Die Nähe zu Remagen, bekannt für seine historische Brücke und das Friedensmuseum, ergänzt das kulturelle Angebot.
Unkelbach ist über die Bundesstraße B9 gut an das Verkehrsnetz angebunden, die sowohl in Richtung Bonn/Köln als auch in Richtung Koblenz führt. Der Bahnhof Remagen bietet eine hervorragende Anbindung an den regionalen und überregionalen Bahnverkehr. Zudem besteht eine Anbindung an das öffentliche Nahverkehrsnetz durch Buslinien, die Unkelbach mit Remagen und umliegenden Orten verbinden.
ENERGIEDATEN
GEG: in Bearbeitung
- Helle Dachgeschosswohnung
- Separater Kellerraum
- Balkon mit Blick ins Grüne
- Renovierungsbedürftig mit Gestaltungspotenzial
- Tageslichtbad mit Badewanne
- und vieles mehr...
GRUNDRISS

IHRE ANSPRECHPARTNERIN
Alexandra Quadt-Lichtenthäler
Prokuristin
JETZT ANFRAGEN
Sie haben Fragen, möchten ein ausführliches Exposé erhalten oder einen Beratungstermin vereinbaren? Gerne sind wir Ihnen behilflich.
*Die Käuferprovision ist verdient und fällig mit notarieller Beurkundung. Wir haben einen Maklervertrag mit dem Verkäufer zur Zahlung der Provision in gleicher Höhe abgeschlossen.
Wir sind bestrebt, alle Objektinformationen richtig zu übermitteln. Diese beruhen ganz oder teilweise auf Angaben der Verkäuferseite. Das Exposé dient als Vorinformation und die Prüfung sämtlicher Angaben obliegt dem Kaufinteressenten. Wir übernehmen keine Gewähr.